Sold STC
Offers over £365,000

2 bed character property for sale
Crow Lane, Wilton (ref: RS053)

Shortlist

Key features

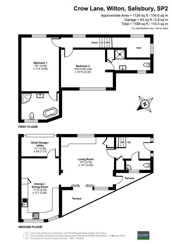
  • Characterful riverside home, part of a converted 1914 warehouse
  • 2 double bedrooms, each with its own ensuite
  • Sitting room with sliding doors onto a private riverside terrace
  • High-quality kitchen with quartz worktops and built-in appliances
  • Useful utility room with electric roller door onto Crow Lane
  • Plantation shutters fitted throughout
  • Electric car charging point

Video

A stylish riverside cottage in the heart of Wilton. 2 ensuite bedrooms, a sleek kitchen with quartz worktops, private river terrace. Immaculately presented and move-in ready, this cottage blends history, character and modern convenience.

Tucked away in the heart of Wilton, 4 Crow Lane is a riverside home with a story to tell. Once part of a warehouse built around 1914, today it is a bright and spacious cottage with a private terrace overlooking a tributary of the River Wylye. Carefully updated with a practical layout, this beautifully presented cottage is ready to move straight into.

Step into the hallway and a full-height ceiling creates a bright and airy welcome. From here, the sitting room is immediately inviting, with doors that open straight onto the terrace where the river flows just beyond. It's a space that works as well for quiet mornings with a coffee as it does for evenings with friends and is a perfect spot to watch the wildlife on the river. The current owners once even spotted an otter enjoying a trout on the far bank!

The kitchen has been beautifully fitted with quartz worktops and built-in appliances. It has a quality feel and plenty of space for cooking and casual dining. There is a door through to a very handy utility room and here, you'll find additional storage and an electric roller door that opens directly onto the lane a clever, practical touch and very handy for storing bikes.

Upstairs, there are two generous double bedrooms, each with its own bathroom. Bedroom 1 is a lovely sized and peaceful room with an ensuite bathroom, while the second bedroom has an ensuite shower room and overlooks the river. Both have the same sense of calm that runs throughout the house, with the sound of the river drifting in through open windows on summer nights.

Outside, the front courtyard catches the sun for most of the day and is a lovely spot for plant pots. At the back, the riverside terrace is entirely private to No. 4 and can only be reached from the house. It is a perfect for sitting out with a book, a glass of wine, or simply watching the light change on the water.

This is a home with charm and character, but also one that has been designed with modern comfort and practicality in mind. It is ideal for a professional couple or anyone looking for a peaceful base with everything Wilton and Salisbury have to offer close at hand.

About the Area
Wilton is a historic market town just three miles west of Salisbury. Known as the ancient capital of Wessex, it has a strong sense of community and plenty of day-to-day amenities including independent shops, cafés, pubs, a weekly market and a doctors' surgery. Wilton House and its beautiful grounds are a local landmark, with various events throughout the year.

For walkers and nature lovers, the River Wylye valley offers endless routes through water meadows and rolling Wiltshire countryside. The nearby Grovely Woods are a haven for wildlife and a favourite spot for dog walks.

Salisbury is just a short drive or bus ride away, with its cathedral, thriving arts scene, restaurants and excellent schools. From Salisbury station, trains run direct to London Waterloo in around 90 minutes. The A36 and A303 are also close at hand, providing straightforward road connections to London or the South West.
Whether you're after countryside walks, good transport links or simply a welcoming small-town feel, Wilton offers the best of all worlds.


Council Tax Band: C (Wiltshire County Council)
Tenure: Freehold
Parking options: EV Charging, On Street
Electricity supply: Mains
Heating: Gas Mains
Water supply: Mains
Sewerage: Mains


Download brochure

Stamp duty due

Based on a sale price of £365,000 the total amount of stamp duty payable will be:

*

Last updated: The calculator has been updated to reflect changes in stamp duty following the Autumn Budget on 30th October 2024 for April 1st 2025 onwards.

* This value is based on the standard rate and not applicable to first-time buyers or buy-to-let / second home buyers.

28 Property images

2 bed character property for sale in Crow Lane, Wilton 0

2 bed character property for sale in Crow Lane, Wilton 1

2 bed character property for sale in Crow Lane, Wilton 2

2 bed character property for sale in Crow Lane, Wilton 3

2 bed character property for sale in Crow Lane, Wilton 4

2 bed character property for sale in Crow Lane, Wilton 5

2 bed character property for sale in Crow Lane, Wilton 6

2 bed character property for sale in Crow Lane, Wilton 7

2 bed character property for sale in Crow Lane, Wilton 8

2 bed character property for sale in Crow Lane, Wilton 9

2 bed character property for sale in Crow Lane, Wilton 10

2 bed character property for sale in Crow Lane, Wilton 11

2 bed character property for sale in Crow Lane, Wilton 12

2 bed character property for sale in Crow Lane, Wilton 13

2 bed character property for sale in Crow Lane, Wilton 14

2 bed character property for sale in Crow Lane, Wilton 15

2 bed character property for sale in Crow Lane, Wilton 16

2 bed character property for sale in Crow Lane, Wilton 17

2 bed character property for sale in Crow Lane, Wilton 18

2 bed character property for sale in Crow Lane, Wilton 19

2 bed character property for sale in Crow Lane, Wilton 20

2 bed character property for sale in Crow Lane, Wilton 21

2 bed character property for sale in Crow Lane, Wilton 22

2 bed character property for sale in Crow Lane, Wilton 23

2 bed character property for sale in Crow Lane, Wilton 24

2 bed character property for sale in Crow Lane, Wilton 25

2 bed character property for sale in Crow Lane, Wilton 26

2 bed character property for sale in Crow Lane, Wilton 27

Further details

  • Status: Sold STC
  • Council tax band: C
  • Tenure: Freehold
  • Parking spaces: EV charging, On Street
  • Reference: RS053

Location

Similar priced properties

3 bed house for sale in Florence Mews, Wilton, Salisbury
Sold STC
360 Virtual Tour Available
Offers over £325,000
3 bed house for sale
Florence Mews, Wilton, Salisbury
3 3 2

Florence Mews is part of a small, well-kept development exclusively for the over 55s and this particular home offers something special: a bright, spacious layout, the security of a...

3 bed house for sale
Florence Mews, Wilton, Salisbury
Offers over £325,000
3 3 2

Florence Mews is part of a small, well-kept development exclusively for the over 55s and this particular home offers something special: a bright, spacious layout, the security of a managed setting, and everything Wilton has to offer just a short walk...

2 bed house for sale in North Street, Wilton, Salisbury
Offers in Region of £350,000
2 bed house for sale
North Street, Wilton, Salisbury
2 2 1

Tucked away at the end of an alleyway just off North Street, this delightful period home has been carefully restored by the current owners to create a calm and stylish home in the...

2 bed house for sale
North Street, Wilton, Salisbury
Offers in Region of £350,000
2 2 1

Tucked away at the end of an alleyway just off North Street, this delightful period home has been carefully restored by the current owners to create a calm and stylish home in the heart of Wilton. Accessed through a secure wooden gate, the property...

2 bed cottage for sale in Garden Cottage, Rockbourne
Sold
360 Virtual Tour Available
£400,000
2 bed cottage for sale
Garden Cottage, Rockbourne
2 1 2

Garden Cottage is the sort of place that instantly feels like home. Tucked within one of Hampshire's most picturesque villages, this 18th-century terraced cottage has all the...

2 bed cottage for sale
Garden Cottage, Rockbourne
£400,000
2 1 2

Garden Cottage is the sort of place that instantly feels like home. Tucked within one of Hampshire's most picturesque villages, this 18th-century terraced cottage has all the warmth and character you'd hope for - cob walls, a welcoming fire in the...