Florence Court, Wilton, SP2 Guide Price £420,000
2 bedrooms
2 bathrooms
3 receptions
11743.43 sq ft (1091 sq m)
1689.93 sq ft
2 bedrooms
2 bathrooms
3 receptions
11743.43 sq ft (1091 sq m)
1689.93 sq ft
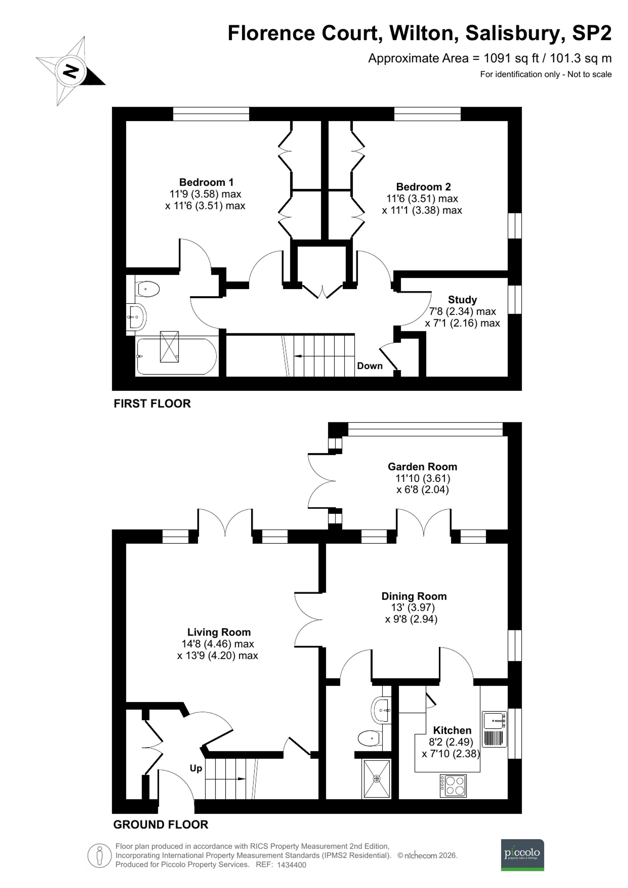
Tucked quietly away within a well-kept courtyard and within a level walk of Wilton town centre, this is a home that feels private yet is still conveniently close to everyday amenities. Built in 2008 as part of a thoughtfully designed over-55s development, Number 3 offers a great balance of light, well-planned rooms and low-maintenance living, along with a genuine sense of community. Beautifully presented and ready to move straight into, it’s an easy, secure home that works just as well day-to-day as it does for locking up and heading away.
The front door opens into a welcoming hallway and from here the house has a practical and easy layout. The sitting room is a particularly comfortable space that is centred around wide double doors that open straight onto the courtyard garden. Another set of double doors leads through to a separate dining room, a lovely sized room that is ideal for both everyday meals and entertaining friends and family. The dining room opens into the garden room which adds a useful extra space that can be used to suit your needs. With a radiator in place, the garden room is a comfortable part of the house that can be used all year round.
The kitchen sits just off the dining room and is compact and well designed with Shaker-style cabinetry, granite worktops and fully integrated appliances. Everything is within easy reach, making it a practical space for everyday cooking.
Also on the ground floor is a shower room which is useful for guests or for those wanting the option of ground floor living.
Upstairs there are two well-proportioned double bedrooms, both with fitted wardrobes, plus a smaller room that works well as a study or hobby room. The main bedroom is light and airy and benefits from ‘Jack and Jill’ access to the main bathroom to create a practical and private arrangement.
Outside, the courtyard garden wraps around the property and has been thoughtfully planted to provide colour and interest throughout the year while remaining easy to maintain. With a southerly aspect, it gets plenty of sunshine and is a lovely spot to sit out for a quiet morning coffee or for socialising with friends.
Florence Court itself is known for its well-kept surroundings and peaceful feel. The communal areas are beautifully maintained and there is an on-site caretaker and a friendly, unobtrusive sense of community. The house also benefits from a designated carport space, along with visitor parking.
With no onward chain, this is a straightforward move into a home that has been carefully looked after from new and offers a simple, secure way of living in a very convenient Wilton setting.
Wilton is a friendly and well-served market town with a strong sense of community and an easy pace of life. From the front door, shops, cafés, a weekly market and several well-regarded pubs are all within walking distance. Everyday essentials including a doctor, dentist, Co-op and a range of independent businesses are close at hand, while surrounding countryside offers excellent walking in Grovely Woods and beyond. Regular bus services connect easily to Salisbury.

































