Sold
£550,000

4 bed character property for sale
5-7 West Street, Wilton (ref: RS082)

Shortlist

Key features

  • Spacious period property dating from the early 19th century
  • 4 double bedrooms & 2 bathrooms
  • Delightful and secluded garden with Pergola seating under a vine
  • Includes shop/office premises (commercial A1 usage)
  • 2 separate kitchens
  • High quality fixtures and fittings including Quooker instant boiling water tap, oak flooring & bespoke wooden fittings
  • Large utility room / pantry and cloakroom
  • 2 good size useful outbuildings and a summer house
  • Ideal for anyone wanting to run a business from home
  • Secondary glazing
Whether you want contemporary country living with everything on your doorstep or a luxury period home - this property has it all. This charming Grade II listed property, right in the heart of Wilton, provides the ultimate opportunity for buyers yearning for village life but with a bit more on offer than a sleepy village location. Wilton is classified as a small town but very much has the village feel. It is a vibrant, thriving rural community with schools and nurseries, a mainline railway station (London to Exeter) not far away in Salisbury, a library and a community centre which holds regular activities for all generations - everything just beyond the front door of this wonderful property.

Built in the late eighteenth century, 5-7 West Street is full of character with many original features. For many years, part of the property has been used as a shop including as a delicatessen and confectioners while the outbuildings at the back were reportedly where the manufacture of straw hats took place.

Having a commercial property as part of this home makes it unique. It can either be used as a shop, design studio, or office space or, adjacent to the shop is a w/c and fully equipped kitchen, should opening a cooking school take your fancy.

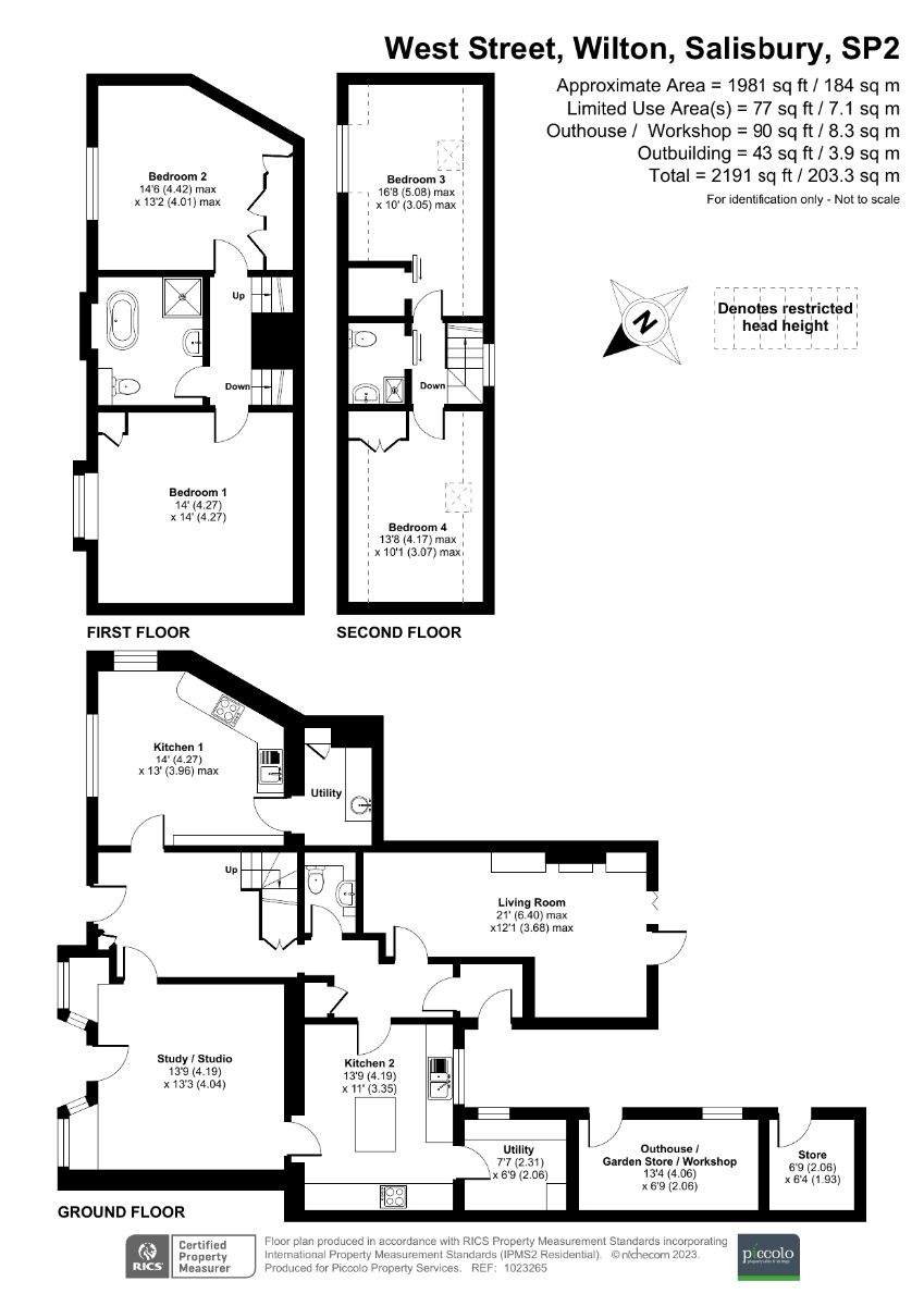
The layout of this property has a huge amount of potential and could easily be configured in a number of ways. From the road the property is deceiving as it provides nearly 2000 sq feet of living space over three floors. Stepping inside this beautiful home is something of a surprise. The rooms are light and bright and the pale walls contrast well with the owners period furniture, creating a stunning mix of traditional and contemporary. Oak flooring throughout the ground floor gives a feeling of luxury and, even though this is an older building, the quality of finish is exceptional.

Set towards the back of the property, the stylish lounge opens out onto a well maintained, mature garden, which makes the room and garden appear as one. Built-in storage and a wood-burning stove add character.

Unusually this property currently has two fully equipped kitchens, which provide the opportunity for independent multi-generational living. The main kitchen and dining area, at the front of the property, has a Shaker style kitchen and plenty of room for entertaining. A Stoves electric range style cooker and Quooker boiling water tap make cooking here a pleasure.

The second kitchen, facing onto the garden, has a breakfast bar island for more informal eating and quick breakfasts. With two ovens, cooking here means you can produce food in quantity, great for entertaining as it means you can keep the main kitchen free for your guests. Both kitchens have plenty of storage and adjacent pantry utility rooms.

There are four large double bedrooms in this property with two on each of the first and second floors. The top floor rooms are tucked into the eaves and the rooms are characterful with some of the beams exposed. The versatility of this property is shown on the first floor where the current owners have turned one of the bedrooms into a wonderful and cosy sitting room with built-in storage and a window seat, ideal for reading or watching the world go by.

On the first floor there is a stunning family bathroom with double-ended bath and large walk-in shower while on the second floor a wet-room provides ample facilities for a busy family. There is a further beautifully finished w/c on the ground floor and throughout the house, the current owners have gone to considerable trouble to hide services.

Although in the centre of town the south facing garden is an oasis of calm, the peace and quiet interrupted only on the hour by the chimes of the clock in Market Square. Much of the garden is walled and the planting well established. A vine covered pergola offers a shady spot to sit and relax and from certain parts of the garden the campanile of the 19th century Italianate church make you think you are somewhere else entirely.

As if there wasn't enough space in this ample property, there are also two additional brick built outbuildings for storage or workshop, depending on your hobbies. Each has lighting and electrics.

Located just off Market Square, this large family home has all you could want within a short walk. Pop across the road to the bakery for fresh croissants with your morning coffee or to one of the cafés. Wilton has a number of hairdressers, a florist, a general store and even a pet shop. Each Thursday morning a market is held in Market Square and on a Friday there is a country market for fresh produce and local fare. There are also some great local pubs all just a stagger away and the Pembroke Arms has a wonderful outdoor pizza oven.



Council Tax Band: E (Wiltshire County Council)
Tenure: Freehold

Download brochure

Stamp duty due

Based on a sale price of £550,000 the total amount of stamp duty payable will be:

*

Last updated: The calculator has been updated to reflect changes in stamp duty following the Autumn Budget on 30th October 2024 for April 1st 2025 onwards.

* This value is based on the standard rate and not applicable to first-time buyers or buy-to-let / second home buyers.

24 Property images

4 bed character property for sale in 5-7 West Street, Wilton 0

4 bed character property for sale in 5-7 West Street, Wilton 1

4 bed character property for sale in 5-7 West Street, Wilton 2

4 bed character property for sale in 5-7 West Street, Wilton 3

4 bed character property for sale in 5-7 West Street, Wilton 4

4 bed character property for sale in 5-7 West Street, Wilton 5

4 bed character property for sale in 5-7 West Street, Wilton 6

4 bed character property for sale in 5-7 West Street, Wilton 7

4 bed character property for sale in 5-7 West Street, Wilton 8

4 bed character property for sale in 5-7 West Street, Wilton 9

4 bed character property for sale in 5-7 West Street, Wilton 10

4 bed character property for sale in 5-7 West Street, Wilton 11

4 bed character property for sale in 5-7 West Street, Wilton 12

4 bed character property for sale in 5-7 West Street, Wilton 13

4 bed character property for sale in 5-7 West Street, Wilton 14

4 bed character property for sale in 5-7 West Street, Wilton 15

4 bed character property for sale in 5-7 West Street, Wilton 16

4 bed character property for sale in 5-7 West Street, Wilton 17

4 bed character property for sale in 5-7 West Street, Wilton 18

4 bed character property for sale in 5-7 West Street, Wilton 19

4 bed character property for sale in 5-7 West Street, Wilton 20

4 bed character property for sale in 5-7 West Street, Wilton 21

4 bed character property for sale in 5-7 West Street, Wilton 22

4 bed character property for sale in 5-7 West Street, Wilton 23

Further details

  • Status: Sold
  • Council tax band: E
  • Tenure: Freehold
  • Reference: RS082

Location

Similar priced properties

4 bed end of terrace house for sale in Albany Road, Salisbury
Sold
£515,000
4 bed end of terrace house for sale
Albany Road, Salisbury
4 1 2

4 bed end-of-terrace Edwardian bay fronted townhouse house. This charming property is set in a great position within the ever-popular Albany Road, The property sits at the head of...

4 bed end of terrace house for sale
Albany Road, Salisbury
£515,000
4 1 2

4 bed end-of-terrace Edwardian bay fronted townhouse house. This charming property is set in a great position within the ever-popular Albany Road, The property sits at the head of the road, so allows for extended views down the pretty residential...

2 bed character property for sale in Garden Cottages, Wardour, Tisbury, Salisbury
Sold STC
Offers in Region of £540,000
2 bed character property for sale
Garden Cottages, Wardour, Tisbury, Salisbury
2 1 1

One of an exclusive community of four properties located within the walled garden of a stately home near Tisbury, Wiltshire. A stunning 2 bedroom home that has been renovated with...

2 bed character property for sale
Garden Cottages, Wardour, Tisbury, Salisbury
Offers in Region of £540,000
2 1 1

One of an exclusive community of four properties located within the walled garden of a stately home near Tisbury, Wiltshire. A stunning 2 bedroom home that has been renovated with exquisite attention to detail that feels contemporary yet traditional....

5 bed end of terrace house for sale in North Street, Wilton, Salisbury
Sold
£575,000
5 bed end of terrace house for sale
North Street, Wilton, Salisbury
5 2 4

Built in 1892 as two separate cottages for Wilton Carpets, this property forms part of the Weavers Guild Terrace. Having been converted into a single dwelling, Weavers Cottage is...

5 bed end of terrace house for sale
North Street, Wilton, Salisbury
£575,000
5 2 4

Built in 1892 as two separate cottages for Wilton Carpets, this property forms part of the Weavers Guild Terrace. Having been converted into a single dwelling, Weavers Cottage is now a large family home with good sized rooms. Located on the side of...