Sold
Guide Price £985,000

4 bed detached house for sale
Clarendon Rise, High Road, Britford, Salisbury (ref: RS144)

Shortlist

Key features

  • EPC Rating: A
  • Excellent bus links to Salisbury City Centre
  • Amazing Views Over Open Fields
  • Stunning 4 bed family home
  • Three reception rooms, including an open-plan kitchen/diner and Juliette balcony lounge with countryside views
  • Top-floor primary suite with walk-in shower and roll-top bath in front of a floor-to-ceiling window
  • Tesla Powerwall and solar panels with the ability to sell electricity back to the grid
  • Integrated EV charging point and gated private driveway with garage

Video

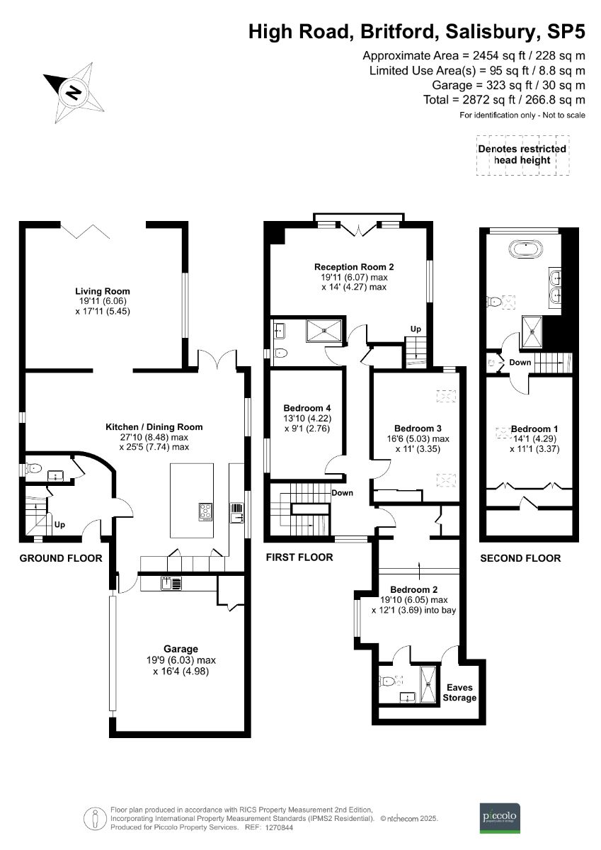
A smart, stylish and seriously efficient home, offering high-spec living across three beautifully light-filled floors. Upgraded during the build for comfort, energy performance and ease, this next-level home features four double bedrooms, three reception spaces, a gated driveway, double garage and stunning countryside views.

Beyond the secure gated driveway and smart kerb appeal lies a home that's as sleek as it is practical. The large entrance hallway leads into a wow-factor open-plan kitchen/dining/living space, with full-width countryside views and bifold doors out to a private terrace and garden. The kitchen is top-spec throughout with quartz countertops, premium integrated appliances, central island, clean lines, and loads of space for family life or entertaining. No boxy rooms, no awkward corners -just smart, flowing space designed for how people really live, a layout that prioritises openness, light and flexibility.

Also on the ground floor: a large utility room, guest cloakroom, and internal access to the double garage.
Head upstairs and you'll find a stunning second reception room with a Juliette balcony overlooking rolling fields with an ever-changing enchanting view, the perfect chill-out spot, TV space or reading zone. There's also a large guest bedroom with its own en-suite, plus two further double bedrooms and a chic family shower room with a walk-in enclosure.

The entire top floor is the primary suite. A calm, private space with built-in storage, a walk-in shower, and a gorgeous roll-top bath set in front of a floor-to-ceiling window. Imagine yourself relaxing in the bath and start gazing, or watching the mist roll over the fields, this is what modern living should feel like.

Outside, the garden is low maintenance and beautifully positioned for privacy and open views, with a private rear gate giving you direct access to footpaths and a short stroll into Britford village and onward into Salisbury. The double garage and gated driveway offer plenty of private space for parking and car charging.

Location-wise, this is spot-on for commuters or city lovers. You're within walking distance of the Park & Ride, there's a bus stop within sight, and Salisbury's historic centre is just minutes away by car and is packed with independent shops, restaurants, weekly markets, and the world-famous cathedral. Mainline trains to London Waterloo and excellent schools make this home as practical as it is beautiful.

If you're looking for a home that's forward-thinking, low-maintenance and totally in tune with today's lifestyle, this is the one.


Council Tax Band: G (Wiltshire County Council)
Tenure: Freehold
Parking options: Garage, Off Street
Garden details: Private Garden


Download brochure

Stamp duty due

Based on a sale price of £985,000 the total amount of stamp duty payable will be:

*

Last updated: The calculator has been updated to reflect changes in stamp duty following the Autumn Budget on 30th October 2024 for April 1st 2025 onwards.

* This value is based on the standard rate and not applicable to first-time buyers or buy-to-let / second home buyers.

18 Property images

4 bed detached house for sale in Clarendon Rise, High Road, Britford, Salisbury 0

4 bed detached house for sale in Clarendon Rise, High Road, Britford, Salisbury 1

4 bed detached house for sale in Clarendon Rise, High Road, Britford, Salisbury 2

4 bed detached house for sale in Clarendon Rise, High Road, Britford, Salisbury 3

4 bed detached house for sale in Clarendon Rise, High Road, Britford, Salisbury 4

4 bed detached house for sale in Clarendon Rise, High Road, Britford, Salisbury 5

4 bed detached house for sale in Clarendon Rise, High Road, Britford, Salisbury 6

4 bed detached house for sale in Clarendon Rise, High Road, Britford, Salisbury 7

4 bed detached house for sale in Clarendon Rise, High Road, Britford, Salisbury 8

4 bed detached house for sale in Clarendon Rise, High Road, Britford, Salisbury 9

4 bed detached house for sale in Clarendon Rise, High Road, Britford, Salisbury 10

4 bed detached house for sale in Clarendon Rise, High Road, Britford, Salisbury 11

4 bed detached house for sale in Clarendon Rise, High Road, Britford, Salisbury 12

4 bed detached house for sale in Clarendon Rise, High Road, Britford, Salisbury 13

4 bed detached house for sale in Clarendon Rise, High Road, Britford, Salisbury 14

4 bed detached house for sale in Clarendon Rise, High Road, Britford, Salisbury 15

4 bed detached house for sale in Clarendon Rise, High Road, Britford, Salisbury 16

4 bed detached house for sale in Clarendon Rise, High Road, Britford, Salisbury 17

Further details

  • Status: Sold
  • Council tax band: G
  • Tenure: Freehold
  • Parking spaces: Garage, Off Street
  • Outside spaces: Private Garden
  • Reference: RS144

Location

Similar priced properties

5 bed house for sale in Coombe Cottage, Hanging Langford Salisbury
Sold
360 Virtual Tour Available
£935,000
5 bed house for sale
Coombe Cottage, Hanging Langford Salisbury
5 3 4

Ideal for families seeking rural charm and plenty of space to grow, this much-loved period home in Hanging Langford offers a rare opportunity to enjoy country life in comfort,...

5 bed house for sale
Coombe Cottage, Hanging Langford Salisbury
£935,000
5 3 4

Ideal for families seeking rural charm and plenty of space to grow, this much-loved period home in Hanging Langford offers a rare opportunity to enjoy country life in comfort, surrounded by beautiful gardens, scenic walks, and the kind of warmth only...

4 bed detached house for sale in 16 The Walled Garden, Heytesbury Park, Heytesbury, Warminster
360 Virtual Tour Available
Guide Price £950,000
4 bed detached house for sale
16 The Walled Garden, Heytesbury Park, Heytesbury, Warminster
4 2 3

+++MOTIVATED SELLERS WITH NO ONWARD CHAIN.+++ Stylish four-bedroom home with three reception rooms, bright open-plan kitchen/diner, private sunny garden, double garage. Fresh,...

4 bed detached house for sale
16 The Walled Garden, Heytesbury Park, Heytesbury, Warminster
Guide Price £950,000
4 2 3

+++MOTIVATED SELLERS WITH NO ONWARD CHAIN.+++ Stylish four-bedroom home with three reception rooms, bright open-plan kitchen/diner, private sunny garden, double garage. Fresh, modern living in an historic walled garden setting within the ground of...

6 bed detached house for sale in Linden House, Amesbury
360 Virtual Tour Available
£990,000
6 bed detached house for sale
Linden House, Amesbury
6 2 3

Linden House feels like a home that's been designed for families - spacious proportions, adaptable and ready for whatever comes next. This is the sort of house that makes everyday...

6 bed detached house for sale
Linden House, Amesbury
£990,000
6 2 3

Linden House feels like a home that's been designed for families - spacious proportions, adaptable and ready for whatever comes next. This is the sort of house that makes everyday life easier, with plenty of space and a layout that just makes sense....