Sold
£935,000

5 bed house for sale
Coombe Cottage, Hanging Langford Salisbury (ref: RS178)

Shortlist

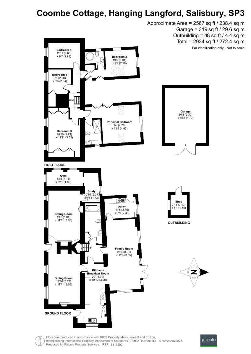
Key features

  • No onward chain
  • A charming & spacious 5 bed period home with flexible living space and a beautifully landscaped garden
  • Heated outdoor swimming pool with pool shed
  • Stylish kitchen with granite worktops, Aga, and integral wine cooler
  • Large Family Room with underfloor heating
  • Drawing Room with woodburning stove & Dining Room with 2 feature fireplaces
  • Versatile additional rooms including Gym, Study and Utility
  • Two double bedrooms with underfloor heating, rural views & ensuite shower rooms
  • Family Bathroom (ground floor) with quality fittings & travertine flooring
  • Mature half-acre garden designed in rooms with Mediterranean-style walled section

Video

Ideal for families seeking rural charm and plenty of space to grow, this much-loved period home in Hanging Langford offers a rare opportunity to enjoy country life in comfort, surrounded by beautiful gardens, scenic walks, and the kind of warmth only a home with real character can provide.

Blending period charm with generous living spaces, this property and has been thoughtfully extended to provide everything a family could need for modern rural living. The original part of the house, once two separate cottages dating from around 1815, and later the village pub, has been cleverly joined and extended to create a warm, welcoming home with flexible accommodation.

At its heart is a well-planned kitchen with stone travertine flooring, granite worktops, oil-fired Aga, and soft-close cupboards, perfect for everyday living and entertaining alike. From here, the space flows into a spacious family room, added in 2006, where large doors open directly onto the garden, making it ideal for sociable summer living. This room has oak flooring with underfloor heating. There is an adjacent utility room that is well-proportioned and practical.

The drawing room has a wood-burning stove making this a lovely cosy spot for winter evenings, and the dining room has 2 feature fireplaces which are just perfect for decorating at Christmas. There is also a quiet study, a ground floor family bathroom and a small gym room tucked away which offer more flexibility for working from home, creative pursuits or everyday practical use.

Upstairs, the house continues to impress with four double bedrooms, two of which are generous doubles with en-suite shower rooms, high ceilings and velux windows which let in plenty of natural light. The principal bedroom has wonderful views over the garden and the surrounding countryside and benefits from underfloor heating and built-in cupboards. There is also a good size single bedroom.

The second bedroom mirrors many of these features and also has beautiful views and the same sense of warmth and space. Bedroom 3 has excellent storage, and two further rooms are ideal guest, children's or hobby spaces and have lovely views across to the hills.

Outside, the property opens out into a wonderful half-acre garden which has been thoughtfully planted and cleverly divided into a series of 'garden rooms' with hedging and a rich array of herbaceous borders, mature trees and fruit trees. From the Mediterranean-style walled garden by the kitchen (perfect for quiet morning coffee among the honeysuckle), to the open lawns and shady spots that change with the movement of the sun, every part of the garden is a delight.

A standout feature is the heated outdoor pool, added in 2001, with a pool house containing the pump and filter. The large pool patio area makes this the perfect spot for laid-back summer days, pool parties and BBQs. For families with children or visiting grandchildren, the space is safe and enclosed and there is plenty of off-road parking for several vehicles, as well as an old timber garage just across the lane.

The house is surrounded by peaceful countryside and a strong community spirit. Local village halls offer a range of activities, and there are tennis courts, walking trails, and cycle routes all around, providing plenty to enjoy just outside your front door. A mobile library visits regularly, and for younger families there is a good choice of quality private and public schools, in both Salisbury and Warminster.

The village is served by bus routes including the community-run 'wiggly' bus, while further amenities include a small supermarket and fuel station just ten minutes away in Codford. For dining and socialising there are a number of excellent pubs within easy reach; The Rainbow Inn is walkable and The Bell at Wylye is a short cycle ride away. A short drive takes you to popular favourites like The Boot, The Beckford Arms and The Prince Leopold.

Salisbury and Warminster are within a comfortable driving distance, offering a full range of shops, schools and services, while the surrounding landscape makes this an ideal base for anyone who enjoys walking, running or cycling in the countryside. With so many ways to enjoy both the home and the location, this is a property where generations can gather, grow and make incredible memories.



Council Tax Band: G (Wiltshire County Council)
Tenure: Freehold
Electricity supply: Mains
Heating: Oil
Water supply: Mains
Sewerage: Mains


Download brochure

Stamp duty due

Based on a sale price of £935,000 the total amount of stamp duty payable will be:

*

Last updated: The calculator has been updated to reflect changes in stamp duty following the Autumn Budget on 30th October 2024 for April 1st 2025 onwards.

* This value is based on the standard rate and not applicable to first-time buyers or buy-to-let / second home buyers.

22 Property images

5 bed house for sale in Coombe Cottage, Hanging Langford Salisbury 0

5 bed house for sale in Coombe Cottage, Hanging Langford Salisbury 1

5 bed house for sale in Coombe Cottage, Hanging Langford Salisbury 2

5 bed house for sale in Coombe Cottage, Hanging Langford Salisbury 3

5 bed house for sale in Coombe Cottage, Hanging Langford Salisbury 4

5 bed house for sale in Coombe Cottage, Hanging Langford Salisbury 5

5 bed house for sale in Coombe Cottage, Hanging Langford Salisbury 6

5 bed house for sale in Coombe Cottage, Hanging Langford Salisbury 7

5 bed house for sale in Coombe Cottage, Hanging Langford Salisbury 8

5 bed house for sale in Coombe Cottage, Hanging Langford Salisbury 9

5 bed house for sale in Coombe Cottage, Hanging Langford Salisbury 10

5 bed house for sale in Coombe Cottage, Hanging Langford Salisbury 11

5 bed house for sale in Coombe Cottage, Hanging Langford Salisbury 12

5 bed house for sale in Coombe Cottage, Hanging Langford Salisbury 13

5 bed house for sale in Coombe Cottage, Hanging Langford Salisbury 14

5 bed house for sale in Coombe Cottage, Hanging Langford Salisbury 15

5 bed house for sale in Coombe Cottage, Hanging Langford Salisbury 16

5 bed house for sale in Coombe Cottage, Hanging Langford Salisbury 17

5 bed house for sale in Coombe Cottage, Hanging Langford Salisbury 18

5 bed house for sale in Coombe Cottage, Hanging Langford Salisbury 19

5 bed house for sale in Coombe Cottage, Hanging Langford Salisbury 20

5 bed house for sale in Coombe Cottage, Hanging Langford Salisbury 21

Further details

  • Status: Sold
  • Council tax band: G
  • Tenure: Freehold
  • Reference: RS178

Location

Similar priced properties

6 bed detached house for sale in The Coach House, Grange Lane, Warminster
Sold
360 Virtual Tour Available
£800,000
6 bed detached house for sale
The Coach House, Grange Lane, Warminster
6 3 3

The Coach House A unique opportunity to create a stunning home in a prime location on the outskirts of Warminster. Nestled at the end of a private driveway, the house is completely...

6 bed detached house for sale
The Coach House, Grange Lane, Warminster
£800,000
6 3 3

The Coach House A unique opportunity to create a stunning home in a prime location on the outskirts of Warminster. Nestled at the end of a private driveway, the house is completely secluded and not overlooked. Surrounded by farmland, the south-facing...

4 bed detached house for sale in Rectory Paddock, Little Langford, Salisbury
Sold
360 Virtual Tour Available
Offers over £875,000
4 bed detached house for sale
Rectory Paddock, Little Langford, Salisbury
4 3 4

Tucked away in one of Wiltshire's most peaceful rural hamlets, Rectory Paddock offers an exceptional sense of space both inside and out. Originally built as a modest bungalow, the...

4 bed detached house for sale
Rectory Paddock, Little Langford, Salisbury
Offers over £875,000
4 3 4

Tucked away in one of Wiltshire's most peaceful rural hamlets, Rectory Paddock offers an exceptional sense of space both inside and out. Originally built as a modest bungalow, the home has evolved over time into a large and versatile residence of...

4 bed detached house for sale in 16 The Walled Garden, Heytesbury Park, Heytesbury, Warminster
360 Virtual Tour Available
Guide Price £950,000
4 bed detached house for sale
16 The Walled Garden, Heytesbury Park, Heytesbury, Warminster
4 2 3

+++MOTIVATED SELLERS WITH NO ONWARD CHAIN.+++ Stylish four-bedroom home with three reception rooms, bright open-plan kitchen/diner, private sunny garden, double garage. Fresh,...

4 bed detached house for sale
16 The Walled Garden, Heytesbury Park, Heytesbury, Warminster
Guide Price £950,000
4 2 3

+++MOTIVATED SELLERS WITH NO ONWARD CHAIN.+++ Stylish four-bedroom home with three reception rooms, bright open-plan kitchen/diner, private sunny garden, double garage. Fresh, modern living in an historic walled garden setting within the ground of...