Under Offer
Offers over £400,000

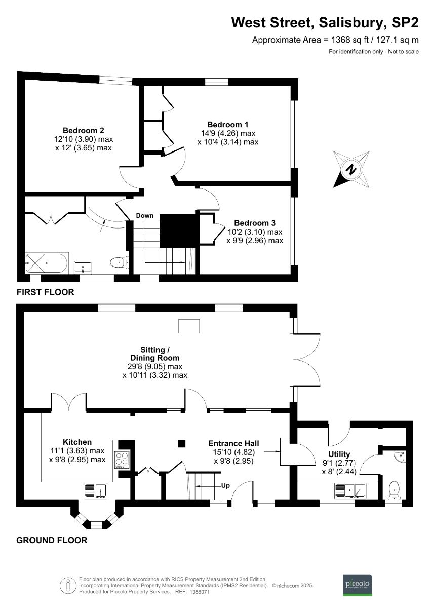
3 bed semi-detached house for sale
West Street, Wilton, Salisbury (ref: RS188)

Shortlist

Key features

  • Mid-19th century Grade II listed cottage
  • Three bedrooms and family bathroom
  • Spacious reception room with log burner and French doors to the garden
  • Good-sized kitchen with modular AGA and space for a table
  • Large utility/boot room with downstairs WC and garden access
  • Peaceful, tucked-away setting in the centre of Wilton
  • South-west facing walled garden with mature planting and patio
  • Private parking for two cars - rare in central Wilton
  • Pretty front courtyard with covered porch
  • Walking distance to Wiltons shops, market square, and amenities

Video

Tucked away in the heart of Wilton, this Grade II listed cottage offers a rare mix of history, character, and practicality with parking for two cars and a private walled garden. Set back from the road, it's a surprisingly peaceful location yet just a short distance from the market square. This is a home that blends charm with everyday convenience.

The spacious entrance hall sets the tone: light-filled, welcoming, and larger than you might expect from a cottage of this age. From the entrance hall, a large boot room/utility gives practical space for laundry and storage and has a stable door that opens straight out to the garden plus there's a downstairs WC.

The main reception room is equally generous with space to create both a cosy sitting area around the freestanding log burner and a dining space for family meals or entertaining. A traditional serving hatch links the room to the kitchen and French doors open straight onto the patio.

The kitchen has a modular AGA that gives a nod to traditional country living and easily accommodates a table.

Upstairs there are three good sized bedrooms, two of which have built-in storage, and a spacious bathroom. While perfectly liveable, the kitchen and bathroom would benefit from updating, giving the new owners the opportunity to make the house their own without needing to take on a full renovation project.

Outside, the south-west facing walled garden is a private haven filled with flowering shrubs, climbers, a shed and a patio for outdoor dining. A gate leads directly to the parking area where there are two private spaces - a real rarity in the centre of Wilton. At the front, there's a pretty courtyard-style garden and a covered porch that adds to the cottage feel.

Living here means enjoying both peace and convenience. The cottage is just a short stroll from Wilton's market square, with its independent shops, cafés, and historic charm, while Salisbury is a few minutes' drive away with a wider choice of schools, restaurants, and rail links to London.


Council Tax Band: E (Wiltshire County Council)
Tenure: Freehold
Parking options: Off Street
Garden details: Private Garden
Electricity supply: Mains
Heating: Gas Mains, Woodburner
Water supply: Mains
Sewerage: Mains


Download brochure

Stamp duty due

Based on a sale price of £400,000 the total amount of stamp duty payable will be:

*

Last updated: The calculator has been updated to reflect changes in stamp duty following the Autumn Budget on 30th October 2024 for April 1st 2025 onwards.

* This value is based on the standard rate and not applicable to first-time buyers or buy-to-let / second home buyers.

30 Property images

3 bed semi-detached house for sale in West Street, Wilton, Salisbury 0

3 bed semi-detached house for sale in West Street, Wilton, Salisbury 1

3 bed semi-detached house for sale in West Street, Wilton, Salisbury 2

3 bed semi-detached house for sale in West Street, Wilton, Salisbury 3

3 bed semi-detached house for sale in West Street, Wilton, Salisbury 4

3 bed semi-detached house for sale in West Street, Wilton, Salisbury 5

3 bed semi-detached house for sale in West Street, Wilton, Salisbury 6

3 bed semi-detached house for sale in West Street, Wilton, Salisbury 7

3 bed semi-detached house for sale in West Street, Wilton, Salisbury 8

3 bed semi-detached house for sale in West Street, Wilton, Salisbury 9

3 bed semi-detached house for sale in West Street, Wilton, Salisbury 10

3 bed semi-detached house for sale in West Street, Wilton, Salisbury 11

3 bed semi-detached house for sale in West Street, Wilton, Salisbury 12

3 bed semi-detached house for sale in West Street, Wilton, Salisbury 13

3 bed semi-detached house for sale in West Street, Wilton, Salisbury 14

3 bed semi-detached house for sale in West Street, Wilton, Salisbury 15

3 bed semi-detached house for sale in West Street, Wilton, Salisbury 16

3 bed semi-detached house for sale in West Street, Wilton, Salisbury 17

3 bed semi-detached house for sale in West Street, Wilton, Salisbury 18

3 bed semi-detached house for sale in West Street, Wilton, Salisbury 19

3 bed semi-detached house for sale in West Street, Wilton, Salisbury 20

3 bed semi-detached house for sale in West Street, Wilton, Salisbury 21

3 bed semi-detached house for sale in West Street, Wilton, Salisbury 22

3 bed semi-detached house for sale in West Street, Wilton, Salisbury 23

3 bed semi-detached house for sale in West Street, Wilton, Salisbury 24

3 bed semi-detached house for sale in West Street, Wilton, Salisbury 25

3 bed semi-detached house for sale in West Street, Wilton, Salisbury 26

3 bed semi-detached house for sale in West Street, Wilton, Salisbury 27

3 bed semi-detached house for sale in West Street, Wilton, Salisbury 28

3 bed semi-detached house for sale in West Street, Wilton, Salisbury 29

Further details

  • Status: Under Offer
  • Council tax band: E
  • Tenure: Freehold
  • Parking spaces: Off Street
  • Outside spaces: Private Garden
  • Reference: RS188

Location

Similar priced properties

3 bed end of terrace house for sale in Florence Mews, Wilton, Salisbury
Sold
£360,000
3 bed end of terrace house for sale
Florence Mews, Wilton, Salisbury
3 3 2

Within an easy walk of Wilton's Market Square, historic ruins and Italianate church, Florence Mews is part of a prestigious development where luxury living and an unrivalled sense...

3 bed end of terrace house for sale
Florence Mews, Wilton, Salisbury
£360,000
3 3 2

Within an easy walk of Wilton's Market Square, historic ruins and Italianate church, Florence Mews is part of a prestigious development where luxury living and an unrivalled sense of community converge. The Florence Court development was built by...

2 bed character property for sale in Crow Lane, Wilton
360 Virtual Tour Available
Offers over £365,000
2 bed character property for sale
Crow Lane, Wilton
2 2 1

A stylish riverside cottage in the heart of Wilton. 2 ensuite bedrooms, a sleek kitchen with quartz worktops, private river terrace. Immaculately presented and move-in ready, this...

2 bed character property for sale
Crow Lane, Wilton
Offers over £365,000
2 2 1

A stylish riverside cottage in the heart of Wilton. 2 ensuite bedrooms, a sleek kitchen with quartz worktops, private river terrace. Immaculately presented and move-in ready, this cottage blends history, character and modern convenience. Tucked away...

2 bed cottage for sale in Garden Cottage, Rockbourne
Sold
360 Virtual Tour Available
£400,000
2 bed cottage for sale
Garden Cottage, Rockbourne
2 1 2

Garden Cottage is the sort of place that instantly feels like home. Tucked within one of Hampshire's most picturesque villages, this 18th-century terraced cottage has all the...

2 bed cottage for sale
Garden Cottage, Rockbourne
£400,000
2 1 2

Garden Cottage is the sort of place that instantly feels like home. Tucked within one of Hampshire's most picturesque villages, this 18th-century terraced cottage has all the warmth and character you'd hope for - cob walls, a welcoming fire in the...